top of page

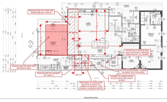
Case Study 1 - Queenscliff House
Originally tendered at $1.047m ($400k over budget). Considered Consulting provided an extensive architectural and structural redesign and implemented 50no. value management initiatives, saving the clients $323k to resurrect the project which had stagnated for 2 years.
“You are bloody clever! Who needs an architect when we have you! I am going to be your referee for all future clients - once they talk to me they won't say no!”
Lee Baker, Client

.jpg)



Case Study 2 - Camberwell Apartments
Originally tendered at $21.649m ($4m over budget). An extensive structural and facade redesign was implemented along with 56no. value management initiatives, saving the clients $2.394m
.jpg)
_edited.jpg)

Case Study 3 - Canterbury Home
.jpg)
Originally tendered at $9.085m ($1m over budget). An extensive structural redesign was implemented along with 30no. value management initiatives, saving the clients $899k
.jpg)

bottom of page

.jpg)